关于我们
ABout us
企业简介

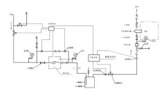
- 河南正心环保科技有限公司是一家能源与环保领域科技创新型的企业。致力于中国工业节能减排事业,服务于有社会责任感的工业企业。 正心环保科技成立于2012年,创始人毕业于哈尔滨工业大学热能工程专业硕士,多年从事锅炉燃烧技术研发和污染物排放控制相工作,自2006年起陆续开发了工业沼气掺烧系统、工业臭气无害化处理系统、污泥混烧处理系统、原油沉淀物回收系统、印染废气利用系统、小型碱回收系统等系列节能环保综合处理系统。 公司现主营工业沼气掺烧设备及系统推广、工业臭气无害化处理、节能环保设备开发定制、工业废弃物(废气废液废固)综合利用技术咨询及传热传质数值模拟。 工业沼气掺烧系统投资少、安装调试周期短、系统稳定可靠,既满足环保要求又符合企业发展需要,已经广泛应用于制药行业、酒精行业、造纸行业...
新闻动态
- 201711-07
环境保护部等九部门《关国务院办公厅近日转发了环境保护部等九...
- 201711-07
电监会办公厅就开展2010年近日,电监会办公厅以办资质[2010...
- 201711-07
电监会印发《关于进一步为贯彻落实国务院节能减排电视电话会议...
- 201711-07
六部门联合开展节能减排为贯彻国务院《关于进一步加大工作力度...
- 201711-07
中华人民共和国大气污染(1987年9月5日第六届全国人民代表大会常...
工程案例
CASE























