
脱硫技术
循环流化床锅炉脱硫炉内加钙脱硫锅 循环流化床锅炉的燃烧特性决定其在钙硫比为2~2.5 时可以做到脱硫约80%。炉内加钙可选择专用喷钙系统或采用混合至煤中加入。尾部脱硫:碱法、......
咨询热线:137-2321-7548
产品介绍
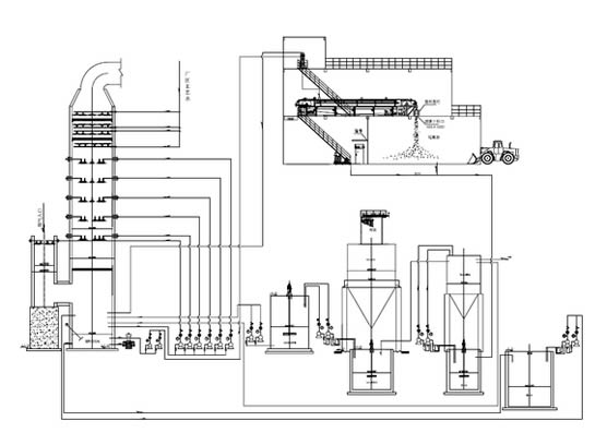
循环流化床锅炉脱硫炉内加钙脱硫锅
循环流化床锅炉的燃烧特性决定其在钙硫比为2~2.5 时可以做到脱硫约80%。炉内加钙可选择专用喷钙系统或采用混合至煤中加入。尾部脱硫:碱法、双碱法或石灰-石膏法下述为石灰-石膏法总体工艺及系统图:烟气先经过除尘器除尘,再经风机加压之后,进入吸收塔,烟气中的SO2与脱硫液逆流接触,完成吸收反应后进入除雾器除雾,最后由烟道引至烟囱排放。吸收液落入塔底后的浆池内设置了脉冲悬浮泵,对脱硫液进行扰动后由循环泵打入喷淋层循环使用,在吸收塔循环泵管道上设计了溢流管道及电控阀门根据塔内浆液密度将一部分浆液排入原有脱硫循环池,在脱硫循环池内对浆液进行强制氧化,达到一定浓度后由渣浆泵打入转鼓真空过滤机进行脱水,经脱水后的石膏由人工外运。
石灰由气力输送机输送到石灰储仓内存放,根据工艺需要定量加灰。当化灰器内浆液不足时,自动打开电磁阀补充工艺水,同时螺旋输送机及石灰粉仓下的星型卸灰阀自动开启将石灰加入到化灰器内,加入一定量后自动停止。化灰器内的石灰通过搅拌制成混合均匀的浆液由石灰浆液泵根据塔内PH 值打入到脱硫塔内。加碱管道设置为回流管路防止管道堵塞。在系统内设置了工艺水系统,对脱硫塔除雾器进行冲洗,同时也对系统的消耗水进行了补充起到了一举两得的作用。





